ホーム > 移住定住 > 空き家・物件情報 > 空き家バンク物件 > 伊集院地域(伊集院、伊集院北、妙円寺、土橋、飯牟礼) > 物件情報463
更新日:2025年10月22日
ここから本文です。
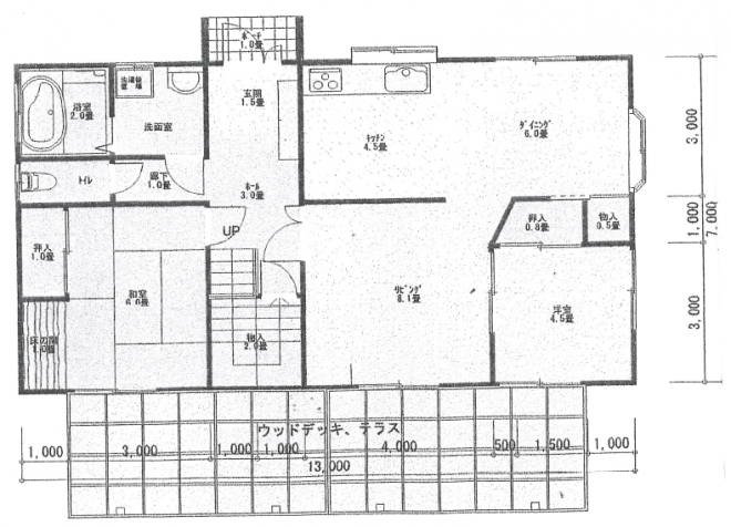
日置市伊集院町伊集院北地区
木造2階建て
1階:31.5坪(104平方メートル)
2階:12.7坪(42平方メートル)
187.85坪(621平方メートル)
売却
16,500,000円
平成10年(令和7年内装リフォーム済)













1階

2階

お問い合わせ
有限会社郡山木材建設
担当:郡山
住所:鹿児島県日置市伊集院町下神殿1-1
電話番号:099-273-2492
mail:kmk1958jp@yahoo.co.jp
より良いウェブサイトにするためにみなさまのご意見をお聞かせください