ホーム > 移住定住 > 空き家・物件情報 > 空き家バンク物件 > 東市来地域(高山、上市来、皆田、湯田、美山、伊作田、鶴丸) > 物件情報474
更新日:2025年12月26日
ここから本文です。
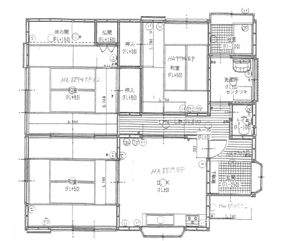
日置市東市来町湯田地区
木造平屋建て
23.74坪(78.51平方メートル)
40.5坪(134平方メートル)
売却
8,700,000円
平成9年


家財道具が残っているため、内観の写真は掲載していません。

お問い合わせ
水流不動産
担当:水流
住所:鹿児島県日置市東市来町2900
電話番号:099-274-6539
より良いウェブサイトにするためにみなさまのご意見をお聞かせください