ホーム > 移住定住 > 空き家・物件情報 > 空き家バンク物件 > 吹上地域(伊作、花田、野首、藤元、平鹿倉、和田、吹上、永吉、坊野) > 物件情報460
更新日:2025年10月14日
ここから本文です。
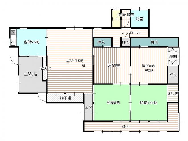
日置市吹上町永吉地区
木造平屋
50.2坪(166.4平方メートル)
553坪(1,834平方メートル)
売却
11,000,000円
大正14年










お問い合わせ
NPO法人結の夢来人・絆プロジェクト
担当:有馬
住所:鹿児島県鹿児島市玉里団地3丁目47-25-31
電話番号:090-9674-8901
より良いウェブサイトにするためにみなさまのご意見をお聞かせください